- Tip ofertă: De vânzare , Fără comision!
- Localizare: Nord
- Cod Proprietate: CP1423675
- Filtru de căutare: Terenuri industriale
- Camere: 12
- Băi: 4
- S. construită: 333 m²
- Suprafață utilă: 306
- Suprafață teren: 2,561 m²
Caracteristici
Detalii
Oferim spre vânzare un spațiu comercial în Parcul Industrial UTA2 ce se poate prelua cu chiriaș ce achită chirie 3000 eur/lună până în decembrie 2026.
Spațiu se poate preda liber de contractul de închiriere cel mai devreme în ianuarie 2027.
Parcul Industrial UTA2 este amplasat în partea de Nord a Municipiului Arad, cu acces direct din E68 (DN7, Centură Nord).
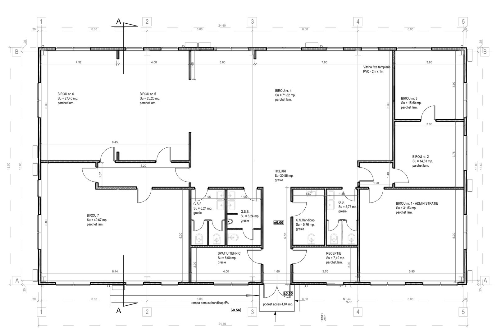
Imobilul este confecționat din panouri sandwich termoizolante și este compartimentat astfel:
– recepție
– 6 birouri
– 4 grupuri sanitare
– holuri
– spațiu tehnic
Suprafață construită: 333 mp
Suprafață teren: 2.561 mp
Prețul mai include și:
– 12 locuri de parcare (autoturisme)
– aprox 2.000 mp spațiu verde
– incintă împrejmuită
Caracteristicile de mai sus fac spațiul pretabil și pentru următoarele activități:
– birouri
– producție
– depozitare
– loc de joacă pentru copii
Important!
Proprietatea este scutită de impozite pe toată durata de existență a titlului de Parc industrial acordat conform ORDINULUI nr. 325 din 15 octombrie 2007.
Pentru detalii, apelați 0721356746. Florin Moș
Dorești să vinzi o proprietate în Arad? Apasă aici: https://acasaarad.ro/vreau-sa-vand
Pentru o discuție despre piața imobiliară din Arad, te invităm la biroul nostru din Arad, Bulevardul Decebal, Nr. 2, Parter
